株式会社アークワン 堺市西区 下河ビル 1階 賃貸募集
NEWS

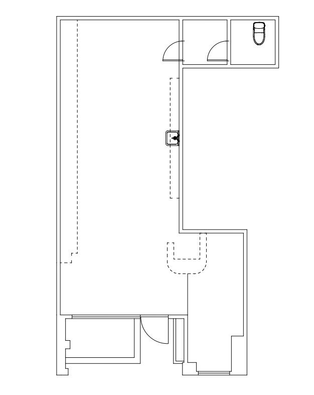
下河ビル 1階 賃貸募集

2023.09.29

堺市堺区市之町東3丁にテナントを募集しております。
大小路通に面した物件となります。事務所・店舗にいかがでしょうか。
賃料は月額 185,000円になります、業種・条件などの詳細はお問合せ下さい!!

堺市・高石市で土地・戸建・マンション・倉庫など不動産買取を積極的に行っています。

LINEでのご相談も可能となりますのでお気軽にご相談下さい。

友だち追加

CONTACT

Copyright(C) ArkOne CO., LTD. All rights reserved.